2 & 4 Marine Way
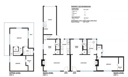
Located on a large corner lot, 2&4 Marine Way is one of the few duplexes in Stinson Beach. The location is ideal! This charming property is extremely close to the beach, the Siren Cafe, the famous Dipsea Trail head, and the heart of the village. The duplex has a successful history as a long term rental and has boundless possibilities as a short term rental, or the duplex would be a great family compound. #2 has a one bedroom and one bath with a private back yard, #4 has one bedroom, a bonus room, two baths, garage and deck with a private back yard. Ocean views can be seen from the bedroom & wrap-around deck.




























































